Vuokrataan/myydään varastotilat - Lahti

Puhelinkatu 2, 15230 Lahti #10843349

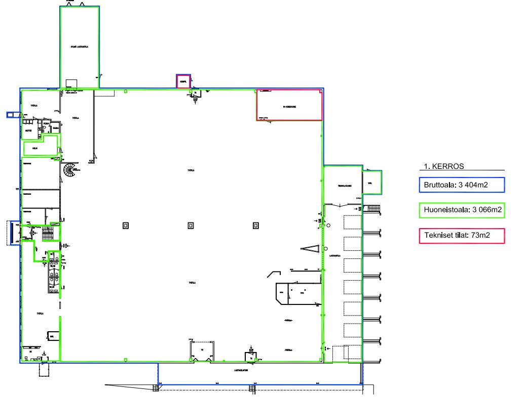
Varasto/logistiikka/tuotantotilaa.
7kpl lastaustaskuja.
1kpl lastauslaitureita, jossa 2kpl nosto-ovia.

Osoite
Puhelinkatu 2, 15230 Lahti
Tilatyyppi
Varastotilaa
3000 m2
Kiinteistö
Nykyisen kaavan mukaan rakennusoikeus 20 631m².
Käyttämätön rakennusoikeus:16 488m².
Tontti: 41 261m².
Kohde on myös pitkän tähtäimen kaavakehityskohde.

Sijainti
Holman alue.
Vuokralaisia
Tiloista on vuokrattu n.600m².
Vapautuu
Sopimuksen mukaan.
Rakennusvuosi
1984
Kerros
1 / 2

Lastauslaituri

Ota yhteyttä
Pyydä lisätietoa

Kohteesta Puhelinkatu 2, Lahti